Desain Rumah Sakit Tipe C

Jan 27, 2021

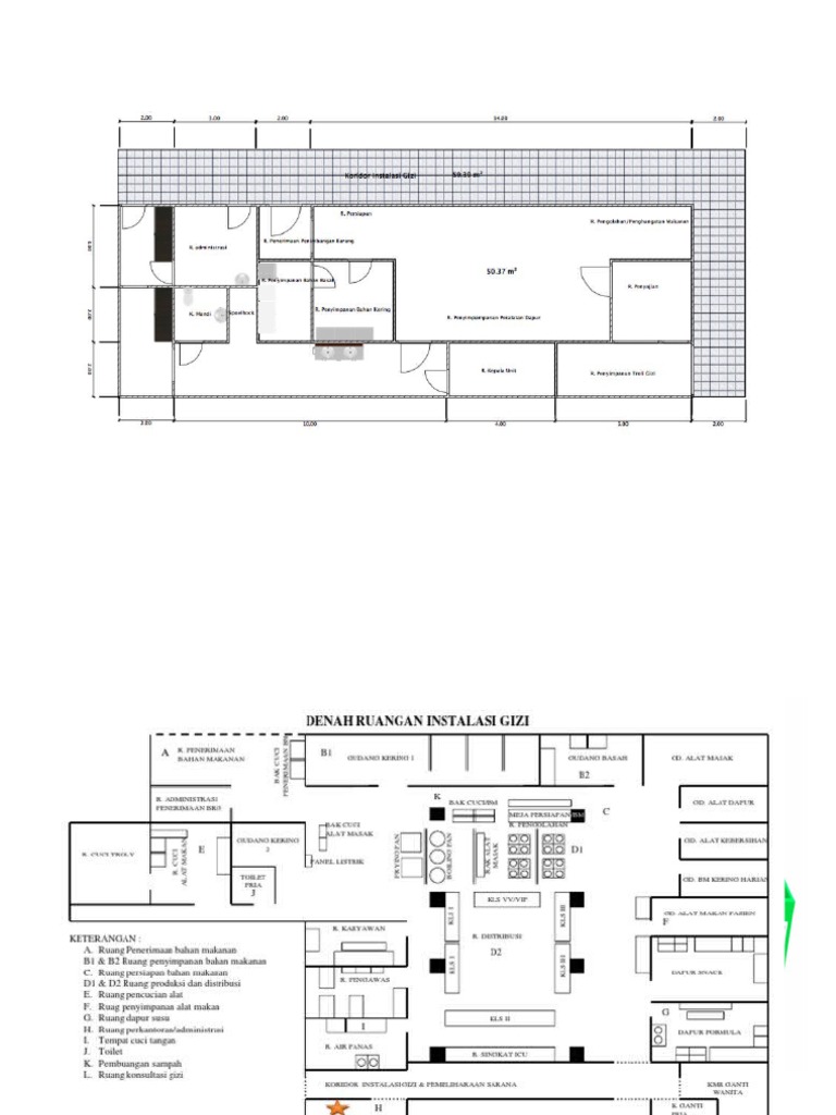
Rumah Sakit Tipe C Berlantai 3 Bakal Jadi Kebanggaan Masyarakat Purworejo RUMAH SAKIT KELAS C DENGAN KONSEP ARSITEKTUR SADAR ENERGI DI KECAMATAN PONTIANAK UTARA KOTA PONTIANAK RUMAH SAKIT KELAS C DENGAN KONSEP ARSITEKTUR SADAR ENERGI DI KECAMATAN PONTIANAK UTARA KOTA PONTIANAK Rumah Minimalis Cat Abu Abu: terbaru: Denah Rumah Sakit Tipe C Tahun 2016 RUMAH SAKIT KELAS C DENGAN KONSEP ARSITEKTUR SADAR ENERGI DI KECAMATAN PONTIANAK UTARA KOTA PONTIANAK desain rumah sakit tipe c Archives - Deagam Design Denah Rumah Sakit Tipe C Lengkap | Rancanghunian RS Hasyim Asyari untuk Dhuafa | ZNEWS Rumah Sakit Lestari Medika Madiun | MultiDesain Arsitek RUMAH SAKIT UMUM DAERAH KUBU RAYA TIPE C Proposal Pendirian Rumah Sakit Profil | RS Tiara Sella Bengkulu Puskesman Rawat Inap Prembun Dijadikan RSU Tipe C – Lintas Kebumen RS PKU MUHAMMADIYAH BIMA : DENAH RS PKU MUHAMMADIYAH BIMA 55+ Gambar Rumah Sakit Tipe C Terbaru - Koleksi Gambar Rumah Terlengkap RUMAH SAKIT KELAS C DENGAN KONSEP ARSITEKTUR SADAR ENERGI DI KECAMATAN PONTIANAK UTARA KOTA PONTIANAK Desain Ruangan CSSD | Dr. Galih Endradita M Rumah Sakit Tipe C Bakal Bebas Rok – KRJOGJA RUMAH SAKIT UMUM KELAS C DI KABUPATEN WONOSOBO RS Pondok Indah - Bintaro Jaya | Daftar Online Himpunan Pedoman Teknis di bidang Bangunan & Sarana RS.indd 15 Rekomendasi Rumah Sakit Umum dengan Fasilitas Lengkap di Jakarta | Popmama.com 72 Koleksi Gambar Rumah Sakit Tipe D Gratis Terbaru - Gambar rumah Perencanaan dan Perancangan Rumah sakit Tipe B Pedoman Teknis Sarana dan Prasarana Rumah Sakit Kelas C Contoh Gambar Denah Rumah Sakit Lengkap | Kumpulan Gambar & Wallpaper DESAIN RUMAH SAKIT TIPE C KRIAN SIDOARJO - YouTube Desain Instalasi Gizi RS Kelas C | Dr. Galih Endradita M Daftar Rumah Sakit Tipe A, B, C dan D di Kota Pontianak - - Berita Fasilitas Umum, Info Publik Pelayanan Publik RUMAH SAKIT KELAS C DENGAN KONSEP ARSITEKTUR SADAR ENERGI DI KECAMATAN PONTIANAK UTARA KOTA PONTIANAK Denah Rumah Sakit – RSUD ANDI MAKKASAU Direncanakan Ada Ruangan President Suite di RS Tipe C – Bagelen Channel RUMAH SAKIT KELAS C DENGAN KONSEP ARSITEKTUR SADAR ENERGI DI KECAMATAN PONTIANAK UTARA KOTA PONTIANAK - PDF Free Download desain rumah sakit | MultiDesain Arsitek Perencanaan dan Perancangan Rumah sakit Tipe B RUMAH SAKIT UMUM DAERAH KELAS C DI KABUPATEN SEMARANG RSUD RAA Tjokronegoro, Rumah Sakit Baru di Purworejo | Purworejo24.com RSUD Ibnu Sina Kab. Gresik - Pages Rumah Sakit Kramat Jadi Tipe C | Jakarta Timur | Jualo Dijual: Jual Rumah Sakit Tipe C full Furnished 19 Unique Tipe C Rumah Sakit - rumah Desain Rumah Sakit - Deagam Design Pembangunan RSUD dr Rubini Baru Mempawah Butuh Dana Ratusan Miliar, Berikut Spesifikasi Gedungnya - Tribun Pontianak REDESAIN INTERIOR RUMAH SAKIT BHAYANGKARA DENGAN KONSEP HEALING ENVIRONMENT Arusani Letakkan Batu Pertama Pembangunan RS Tipe C di Busel | SATULIS.COM RUMAH SAKIT UMUM DAERAH KUBU RAYA TIPE C Project Rumah Sakit Ibu Dan Anak Sahabat Yakkum NAD desain arsitek oleh PT Global Rancang Selaras - ARSITAG Rancangan IPAL Rumah Sakit Tipe C | Hargaipal.com REDESAIN RUMAH SAKIT UMUM BETHESDA DI TOMOHON ARSITEKTUR KONTEKSTUAL - PDF Free Download Desain Instalasi Gizi RS Kelas C | Dr. Galih Endradita M Denahose: Model Denah Rumah Sakit Tipe A 1 PERANCANGAN RUMAH SAKIT IBU DAN ANAK DI KOTA SEMARANG ABSTRAK Rumah Sakit Antam Medika Pulo Gadung Siap Beroperasi - Dunia Energi Dijual Rumah Sakit Tipe C Khusus Kota Malang - Tanah - 815459698 desain rumah sakit | MultiDesain Arsitek Tipe Rumah Sakit yang Ada di Indonesia: Dari Umum Hingga Khusus - Tirto.ID RS Pelabuhan Jakarta Desain Instalasi Gizi RS By SBr77 RUMAH SAKIT KELAS C DENGAN KONSEP ARSITEKTUR SADAR ENERGI DI KECAMATAN PONTIANAK UTARA KOTA PONTIANAK BAB V KONSEP PERENCANAAN DAN PERANCANGAN √ Jadwal Praktek Dokter RS Siloam Buton - Semua Spesialis Inst Bedah Sentral RS Kelas C 7 | Dr. Galih Endradita M Profil RSUD Majalaya - Pemerintah Kabupaten Bandung Klasifikasi Rumah Sakit Umum Tipe A, B, C, D dan E di Semarang - Heri Heryanto 1.11.1 DESAIN ZONING PADA RUMAH SAKIT UMUM DAERAH KELAS B DI JAKARTA SELATAN Novrachel Riyanita1), Indartoyo2) , Rita Walaretina 3 Rumah Sakit di Kota Tangerang Selatan Ini Direkomendasi Kemenkes untuk Turun Kelas - Warta Kota GEDUNG DIJUAL: Dijual Rumah Sakit Tipe C di Kayuringin, Bekasi Selatan Perencanaan dan Perancangan Rumah sakit Tipe B 15 Rekomendasi Rumah Sakit Umum dengan Fasilitas Lengkap di Jakarta | Popmama.com RSUD Prof. Dr. Margono Soekarjo √ Jadwal Praktek Dokter RS Onkologi Surabaya - Semua Spesilais Ini Konsep RSPI Bintaro, Nominator “World Architecture Festival 2019” Halaman all - Kompas.com RS Kurnia Serang | Daftar Online LAPORAN PELAKSANAAN GEDUNG DIJUAL: Dijual Rumah Sakit Tipe C di Kayuringin, Bekasi Selatan Denahose: Desain Denah Rumah Sakit Umum RUMAH SAKIT UMUM DAERAH KELAS C DI KABUPATEN SEMARANG RS UMMI Bogor ::. Home 74 Trend Desain Rumah Sakit Paling Populer di Dunia - Deagam Design REDESAIN INTERIOR RUMAH SAKIT BHAYANGKARA DENGAN KONSEP HEALING ENVIRONMENT BAGIAN 3 ANALISIS. 3.1 Analisis Tahap Skematik Desain - PDF Free Download desain rumah sakit | MultiDesain Arsitek RS. BHAYANGKARA LEMDIKLAT POLRI ::. Tentang Kami Lamongan Bakal Punya Rumah Sakit Covid-19 RS Baru di Kediri ini Diklaim Mewah Layaknya Hotel Rumah Sakit Umum Swasta Majalengka Tipe B Master Plan Gedung Rumah Sakit Tipe b Peningkatan Pelayanan di Loket Pendaftaran / Admisi RSUD dr. Darsono Pacitan | RSUD dr. Darsono Pacitan 21 BAGIAN 3 ANALISIS ipal rumah sakit – ipal rumah sakit tipe c – ipal rumah sakit tipe d – ipal rumah sakit biofilter – desain ipal rumah sakit – daftar harga ipal rumah sakit – Implementasi Sayembara RSJS 1 PERANCANGAN RUMAH SAKIT IBU DAN ANAK DI KOTA SEMARANG ABSTRAK 1.11.1 DESAIN ZONING PADA RUMAH SAKIT UMUM DAERAH KELAS B DI JAKARTA SELATAN Novrachel Riyanita1), Indartoyo2) , Rita Walaretina Kamar Operasi Ruang Usaha Dijual di Purwakarta | Lamudi RSUD Bangil | Situs Resmi Pemerintah Kabupaten Pasuruan Desain Rumah Sakit Tipe C - Des Rumah Keberadaan Dokter di Rumah Sakit Pemerintah Disesuaikan Type – faktapers.id Siloam Kelapa Dua RS UMMI Bogor ::. Home

Andika Sasuke

Spanduk Nasi Goreng Cdr